ArchicadとBIMxを活用した確認申請データ
Graphisoftは、建築確認におけるBIM活用推進協議会(以下、BIM協議会)戸建住宅等作業部会(以下、戸建て部会)にてサンプルモデルの作成協力を致しました。
この戸建て部会では、戸建住宅におけるBIMを用いた審査を検討するため、弊社の確認申請サンプルプロジェクトを活用し、建築確認に必要な図面検討とBIMを用いた審査における課題検討を行いました。
その検討にあたり作成した新たな確認申請サンプルプロジェクトをご提供致します。
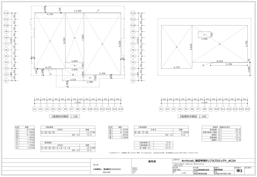
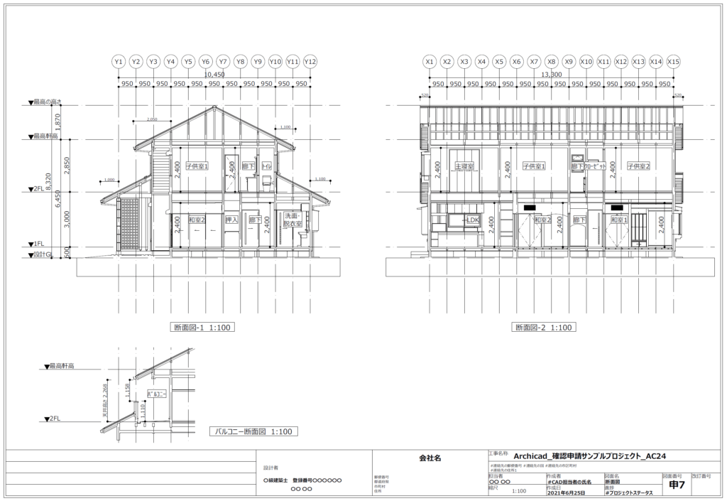
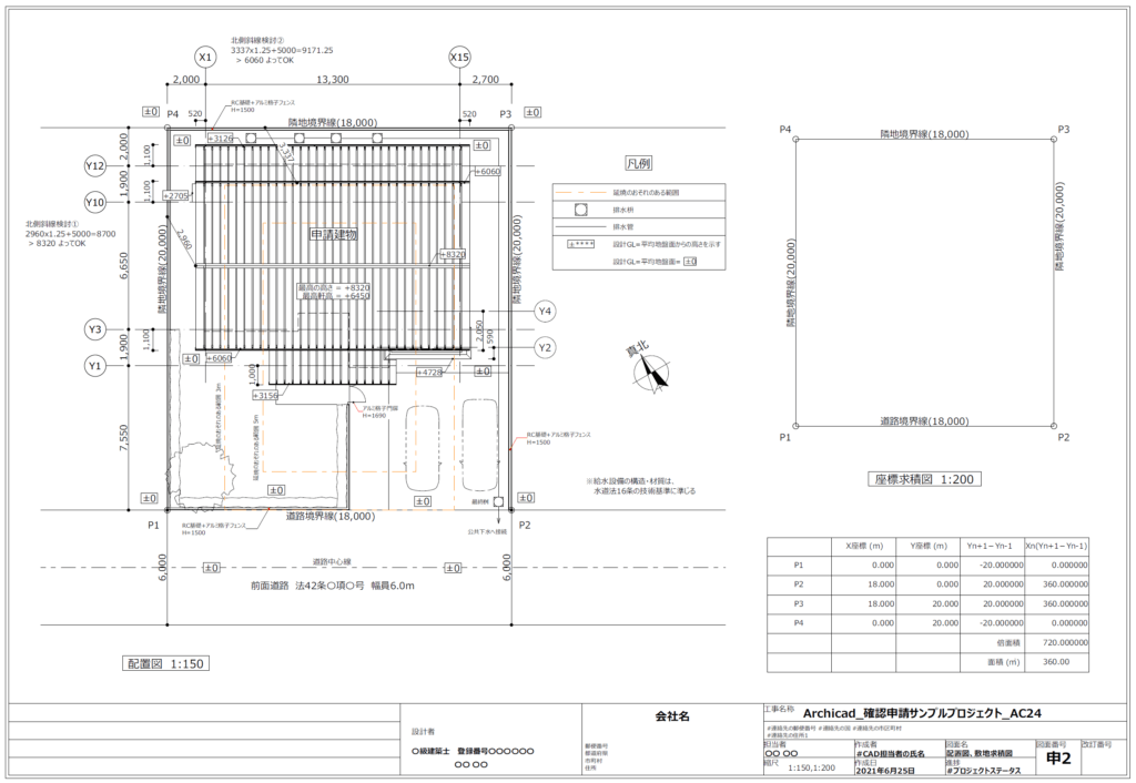
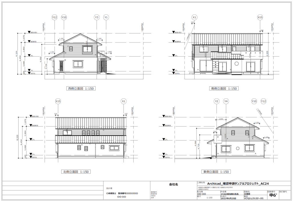
この確認申請サンプルプロジェクトでは、BIM協議会会員の指定確認検査機関(14機関中9機関)と共に作成した確認申請図面及び確認申請に必要な表現の検討結果を反映した標準的な4号特例の確認申請図を閲覧することができます。
また、確認申請図とBIMモデルを重ねて閲覧が可能なBIMxのデータもご確認いただけます。



概要
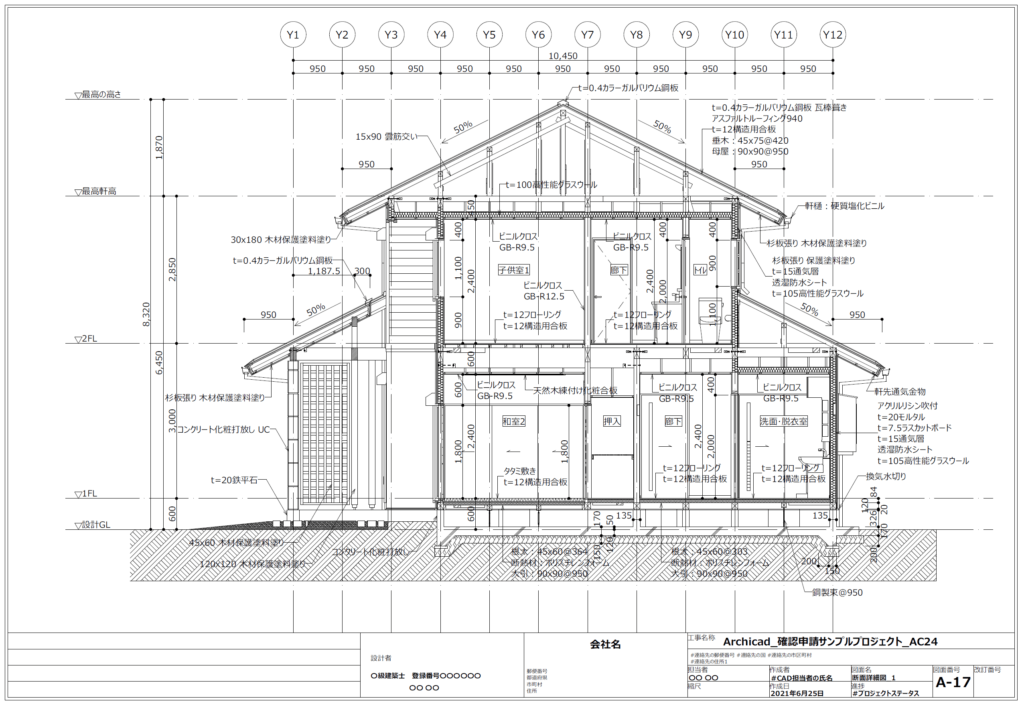
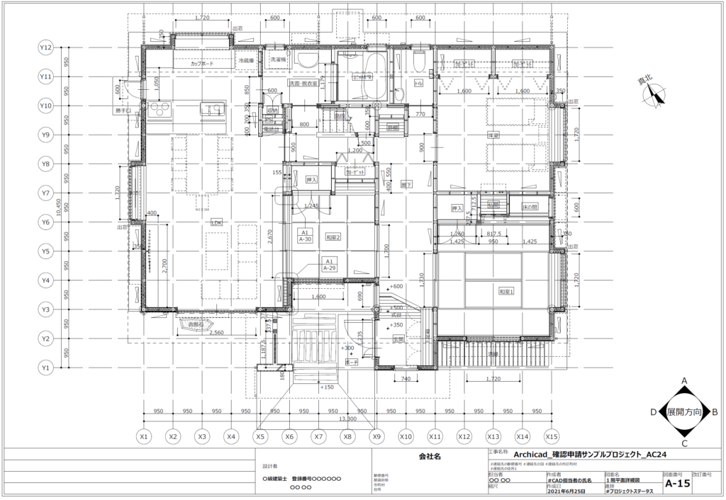
審査機関と共に作成した完全な申請図
BIM協議会にて指定確認検査機関と共に作成した確認申請図面及び確認申請に必要な表現の検討結果を反映した標準的な4号特例の確認申請図を閲覧することができます。



LVS及び24時間換気をモデル情報から活用
LVS及び24時間換気をモデルが持っている要素情報と数式エディタを活用して各図面を作成



3Dで斜線制限を確認及び検討
3Dに斜線制限を表現し可視化することで、プロジェクトをより分かりやすく確認及び検討しています。また新たにリリースされた斜線オブジェクト(VIPオブジェクト)を使用することでより簡単に、斜線制限をチェックしていただくことが可能です。


確認申請図及び審査用3Dが出力されたBIMx
実際に作成及び検証されたBIMxを通して、どのような図面が出力されているのか、モデルでどのような表現がなされているのかをご確認していただけます。


※建物は木造2階建ですが、Archicadの機能を活用するサンプルとして、LVS検討を作成しています。
実施設計段階の意匠設計モデル及び実施設計図書
木造住宅の実施設計段階のサンプルとしてもご活用いただけます。


内容
「Archicad 確認申請サンプルプロジェクト」には架空の木造住宅のArchicad データ(.pla) とBIMx データ(.bimx) が含まれています。Archicad23以前のデータにはBIM協議会で作成したものは含まれていませんが、株式会社ixreaがBIMxを用いて確認申請を行った際のデータを参考に作成したArchicadとBIMxのデータをご確認いただけます。
また、本データには実施設計段階の意匠設計モデルおよび実施設計図書(意匠)が含まれています。
システム条件
- 対応バージョン:Archicad 27/ 28 (Solo versionを含む)
- OS:WindowsおよびMac OSで使用いただけます。
- システムおよびハードウェアスペックは、使用するArchicadに準じます。
ダウンロード
| コンテンツ | 最終更新日 | |
|---|---|---|
| 確認申請サンプルプロジェクト | ダウンロード | 2025年10月17日 |