О компании Лесоград
Московская компания «Лесоград», созданная в 2005 году, специализируется на строительстве загородных деревянных домов. Основные материалы – оцилиндрованное бревно различных сечений и высококачественный профилированный, клееный и нестроганый брус. Об особенностях проектирования деревянных домов в Archicad и о воплощении созданных проектов рассказывают руководитель компании Сергей Пономарев и главный архитектор Владимир Колодий.
Сайт компании: www.lesograd.ru
Один из основных принципов компании Лесоград – постоянство: фирма выстраивает и поддерживает длительные отношения с клиентами. Агрессивному рекламному продвижению предпочитает демонстрацию реального результата, ведь качественно выполненная работа и хорошие отзывы клиентов говорят сами за себя. Этапы реализации проектов появляются на страницах в социальных сетях и активно освещаются на профильных форумах.
В среднем за год Лесоград реализует около двадцати проектов. Небольшой штат компании полностью сосредоточен на профильной деятельности – проектировании и возведении деревянных домов. К выполнению других видов работ (например, к прокладке коммуникаций) привлекаются партнеры. Компания соблюдает оптимальный баланс «цена/качество» и позиционирует свои дома в среднем ценовом сегменте.



У Лесограда три основных правила работы. Первое – это открытость, полностью прозрачная работа в юридической и финансовой областях.
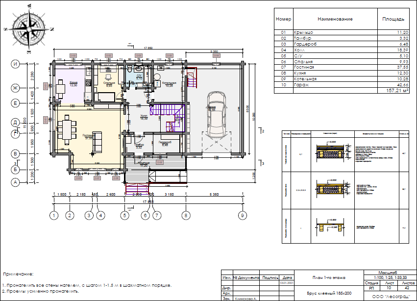
Второе: обязательное создание проекта, даже для небольшого дома. Проекты, а мы их делаем в Archicad, позволяют снять множество вопросов, упорядочивают процесс возведения здания. По сути, наш проект в Archicad – это полное техническое задание со всеми сметами и ведомостями; с ним легче работать бригадам, а заказчикам проще отслеживать результат.
И, наконец, третье правило: мы ведем фото- и видеофиксацию всех этапов работы. С самых первых заказов мы начали собирать архив, где хранится история каждого объекта,
– рассказывает руководитель компании Сергей Пономарев.
Дерево – материал очень симпатичный, хоть и капризный. Древесина хороша с точки зрения экологии, прощает некоторые ошибки, в том числе допущенные при проектировании. Времена меняются, меняется и отношение людей к дереву, но это по-прежнему очень популярный материал. Лесоград начинал с рубленых домов, но позже мы перешли на оцилиндрованное бревно и различные виды бруса,
– говорит Сергей Пономарев.
Лесоград принципиально работает только с деревом, опираясь на понимание особенностей именно этого материала. Руководитель компании отмечает, что хороших специалистов по работе с деревом сейчас найти непросто, поэтому своих сотрудников Лесоград обучает на месте – знакомит с тонкостями профессии и с особенностями материала. Одну из главных особенностей часто обозначают понятием «древесина дышит», то есть имеет способность поглощать и отдавать влагу из окружающей среды. Это одновременно и достоинство, и недостаток, так как при этом изменяются линейные размеры древесины, и это необходимо учитывать при проектировании и строительстве деревянных домов.


Идея воздвигнуть дом на века, прежде владевшая умами многих заказчиков, сейчас постепенно уходит – люди хотят строить именно для себя. При этом у них далеко не всегда есть четкое понимание, как долго деревянный дом может прослужить и как закладывать в проект износостойкость и долговечность постройки. Но такие факторы всегда учитывают архитекторы Лесограда: правильно рассчитанные параметры проекта, соблюдение норм при возведении конструкции помогают избежать проблем и создать комфортный климат в доме, сократить расходы на обслуживание и продлить срок эксплуатации.
Деревянные конструкции оставляют достаточно пространства для творчества. Например, в активе компании есть такой интересный проект, как «Дом скульптора» в Ярославской области. Нестандартные запросы заказчиков всегда интересны, требуют оригинальных и эффективных решений. Так, при постройке «Дома скульптора» особое внимание уделялось проектированию кровли. Деревянный дом предполагает усадку, поэтому сложные кровли сначала делаются временными и только потом заменяются на постоянные. При усадке нужно учитывать массу факторов; чем больше плоскостей в кровле, тем сложнее расчет.
Для работы с двускатной кровлей существуют специальные системы – скользящие элементы, раздвигающиеся стропила. Они помогают равномерно распределить нагрузку, избежать появления щелей и просветов. Сергей Пономарев отдельно отмечает, что даже без оригинальных запросов от клиентов у Лесограда не бывает двух одинаковых домов. Каждый проект по-своему уникален, типовых построек компания старается избегать.
Строительство деревянного дома – долгий процесс, требующий выполнения определенных этапов, нарушение которых нередко ведет к долгострою, а то и к полной остановке работ, замораживанию проекта.


Лесоград редко соглашается завершать недостроенные здания – слишком уж трудоемким оказывается исправление чужого брака. Например, если изначально не рассчитана стропильная система или неправильно заложены основные типовые узлы и соединения, проще пересобрать весь дом, чем пытаться «исправить ситуацию».
В Archicad есть инструменты расчета стропильной системы. Специалисты Лесограда прорисовывают ее и выдают рабочим наглядную схему, чтобы исключить ошибки при сборке. Достаточно часто проблемы недостроенных домов вызваны именно отсутствием проекта – недаром правила Лесограда прямо запрещают строительство без предварительного проектирования. По мнению Сергея Пономарева, любая реконструкция может породить множество проблем и оказаться дороже постройки нового дома. Более того, деревянные дома достаточно требовательны: если нет должных условий эксплуатации, не учтены сроки годности сопутствующих слоев, пленок и диафрагм, – вскоре потребуются средства на ремонт.


При создании проектов команде Лесограда хватает базового функционала Archicad и узкоспециальных приложений, таких как АТ Венцы.
Для демонстрации задумок и решений также достаточно встроенного функционала Archicad – визуализацией проектов в сторонних программных продуктах компания не занимается. Это принципиальная позиция Сергея Пономарева: конкретные технические решения важнее красивой картинки, тратить ресурсы на рендер проекта нецелесообразно. Инструменты Archicad позволяют представить клиенту необходимый визуальный ряд, а при необходимости модель проекта в формате .3ds или .dxf передается для дальнейшей обработки.
С Archicad компания работает давно. Сейчас Лесоград ежемесячно продлевает лицензию, фактически пользуясь подпиской. Сергей Пономарев особо отмечает такой плюс работы с программой: скорость и удобство создания предварительного расчета и определения основных объемов по вводным данным от клиента. В свою очередь это позволяет быстро подготовить прозрачное и четкое коммерческое предложение.


Главный архитектор Лесограда Владимир Колодий рассказал об этапах рабочего процесса в Archicad:
- В начале используется базовый шаблон, в который вносятся правки и дополнения, необходимые для текущего проекта.
- Далее отрисовываются стены согласно эскизам, проектируются элементы фундамента, обвязка, балки, второй и третий этажи, кровля.
- Затем проверяется модель, делаются подрезки стен кровлей.
- Следующий этап – добавление в проект декоративных элементов. Выстраиваются порядовки.
- Завершающий этап – проверка проекта и его оформление на листах для формирования PDF-файлов.
Для архитектора компании преимущества работы в среде Archicad сводятся к шести основным пунктам:
- удобный настраиваемый интерфейс;
- удобство переключения между планами, моделью, разрезами и т.д.;
- широкий ассортимент встроенных 3D-объектов и текстур поверхностей;
- возможность подключения разнообразных дополнений (например, «АТ Венцы»);
- удобство сборки проекта из необходимых видов;
- возможность автоматически получать сметную информацию.
Среди самых любимых инструментов Archicad Владимир Колодий отмечает «Объект». Ассортимент объектов огромен, существует возможность их редактирования.
Работа c Archicad полностью отвечает специфическим задачам строительства домов из бревна и бруса. С помощью инструментов программы архитекторы компании Лесоград уже реализовали множество идей. Впереди – новые задумки, новые проекты и плодотворная работа в среде Archicad.
