
Михаил Пантюхин – инженер и архитектор с более чем двадцатилетним стажем. За свою карьеру он поработал в нескольких организациях, сейчас сотрудничает с «Центральным проектно-технологическим институтом» и ведет личные проекты. Archicad – один из основных и любимых инструментов специалиста. Михаил рассказал о выполнении рабочих задач в среде Archicad.
В 2001 году Михаил Пантюхин начал работать в Калининграде, в архитектурной мастерской Андрея Седина, специализация которой была сосредоточена на фасадных и интерьерных решениях. В центре города сохранилось большое количество классической архитектуры и многие объекты было необходимо выдерживать в определенном «общегородском стиле». Новым зданиям, гостиницам, ресторанам нужно было придавать облик старины. Михаил отмечает, что для раскрытия всего потенциала калининградского региона не хватало хорошей транспортной инфраструктуры. Общий облик города и региона формируют множество ключевых образов, в том числе разные архитектурные стили и направления.
Важно находить и развивать новые точки притяжения, создавать инфраструктуру,
– говорит Михаил Пантюхин.

Archicad позволяет свободно работать в классическом стиле, и именно классика – любимое направление Михаила. Большое количество фасадов, элементов, библиотек с ордерами позволяют комфортно работать с классической архитектурой, соблюдая все пропорции и требования. Михаил считает, что классический стиль не уйдет из архитектуры, а такие здания, по-прежнему будут важнейшей частью городского облика многих городов России и мира.
Михаил Пантюхин начал работать с 7-й версией Archicad в начале «нулевых», и та версия произвела на него огромное впечатление. Михаил вспоминает удобство интерфейса и широкие возможности, которые предоставляла одна из ранних версий ПО. Так Archicad стал одним из основных его инструментов. Глядя на двухмерный чертеж, архитектор представляет себе, какими будут решения, держит в голове массу информации, говорит Михаил. Архитектор, работающий в 3D, сразу «видит» всю картинку полностью. Соответствует ли замысел исполнению, правильно ли расположены элементы фасада, окна, проёмы, внутренние элементы, технические пути. Такой комплексный подход позволяет выполнять задачи быстрее и эффективнее.
Работа в «Калининграджилкомунпроект» вместе с архитектором Натальей Тарабаевой дала Михаилу практические навыки, необходимые для ежедневной работы. Затем был опыт создания собственного бюро «Архитектура+». В тот период в основном поступали заказы на частные дома. Для индивидуального жилищного строительства в Калининграде и области нужно было получить разрешение, проект должен был соответствовать облику всего района. В какой-то момент увеличился туристический поток в Калининград и появились более крупные заказы: гостиницы, рестораны, торговые центры, вспоминает Михаил Пантюхин.
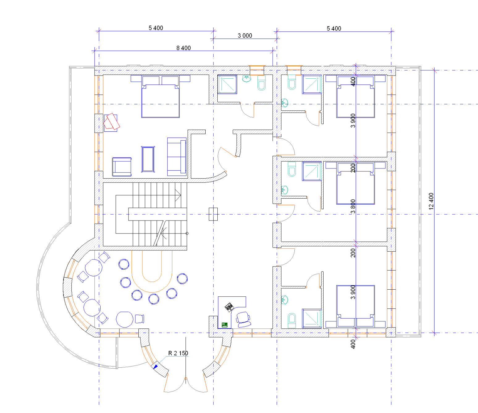
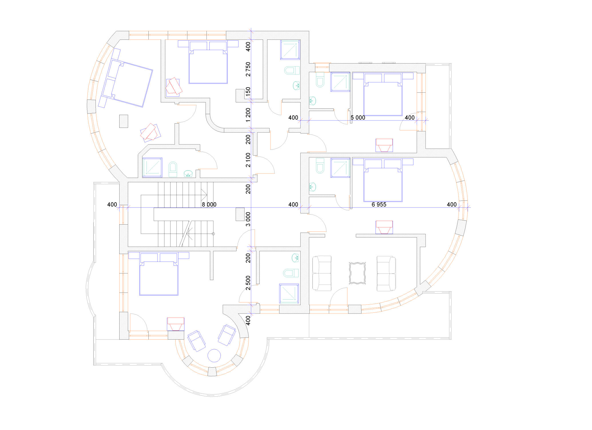
Одним из таких проектов стала гостиница «Акватория» в поселке Янтарный. Изначально планировалась мини-гостиница с выставочным залом янтаря. Акцент был сделан на янтарь, концепция отталкивалась от этого символа региона, но дизайн менялся несколько раз. В итоге получилось здание в два этажа, с мансардой и башней в стиле маяка. С этой башни открывается вид на Балтийское море. В создании гостиницы также участвовали проектировщица Галина Масленникова и архитектор Наталья Тарабаева, которых Михаил Пантюхов может назвать своими наставницами.


Одним из основных преимуществ работы с Archicad Михаил считает разнообразие библиотек, созданных для этой среды – их очень легко найти, скачать и использовать. Михаил использовал библиотеки в том числе при работе с проектами организации строительства и уверен в преимуществах библиотек для среды Archicad.
Из расширений Archicad Михаил особенно часто использует MEP Modeler, которое как раз предназначено для работ с инженерными сетями. Простой и наглядный инструмент для тех, в чьи задачи входит контроль за технологическими требованиями к воздуховодам, трубопроводам и трассам кабелепроводки. Работа с расширением ведется прямо в среде Archicad, в привычном и удобном интерфейсе. В MEP Modeler легко создавать, менять, импортировать трехмерные инженерные сети, экспортировать двухмерные сети и преобразовывать их в 3D. В расширении есть встроенная функция обнаружения коллизий, очень важная для своевременной корректировки накладок.
Также Михаил отметил, что внутренних мощностей и текстур Archicad хватает для визуализации в рамках тех задач, которые стоят перед архитектором. Работа архитектора поэтапна, говорит Михаил: сначала нужно создать концепцию, общий облик здания, а затем наращивать детали. И инструменты Archicad дают возможность работать поэтапно, от эскиза до визуализации. В идеале, смежники тоже должны работать с трехмерными моделями зданий в Archicad. Это снижает вероятность возникновения ошибок, нестыковок, делает весь рабочий процесс эффективным. Это особенно важно, когда проекту предстоят многоступенчатые этапы утверждения и согласования. Но на данный момент такое сквозное проектирование встречается не на всех предприятиях.
Сейчас многие задачи Михаила связаны с земельными работами, поэтому один из наиболее популярных инструментов специалиста – 3D-сетка. Также он выделяет инструмент Морф, который даёт необходимую свободу в работе со сложными объектами.


Но специальный модуль Architerra Plus 2.0* для Archicad Михаил считает недостаточным для качественной работы с геологией. Модуль предназначен больше для ландшафта, а не для геологических разрезов и изысканий. Пласты часто не однородны, но их точное определение необходимо для проектирования качественного фундамента. Как раз тут на помощь приходит инструмент Морф, с ним можно проделать полную работу по геологии, подготовить правильную посадку проекта на местность с учетом всех её особенностей.
* — разработка компании Éptár.
В инженерной и архитектурной работе Михаил вдохновляется возможностью найти и изучить что-то новое. Конечно, им движет и любовь к архитектуре. Он отмечает, когда по проекту архитектора вырастает дом, то есть чувство удовлетворения и радости, реализация созидающего начала. И сейчас эта реализация возможна удобными и качественными инструментами, во многом благодаря Archicad.