介紹
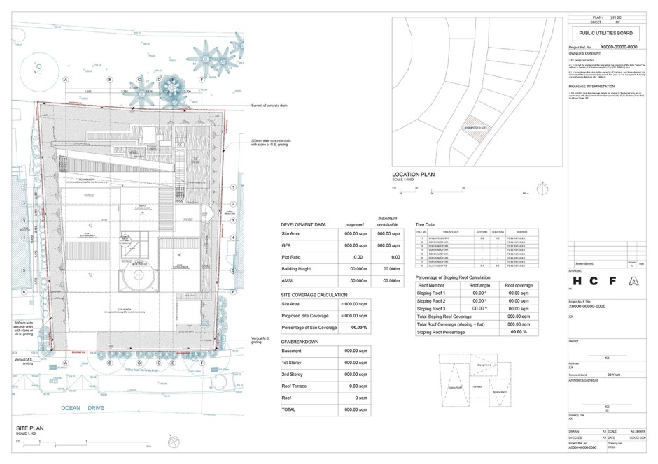
“住宅15″(The House 15)項目屬於新加坡最獨特的門禁社區。建築用地面向大海,佔地700平方米(7553平方呎),毗鄰類似大小的地塊。
該地段雖然有很高價值,但面積相對較小。房屋的規模受制於高度和其他約束。
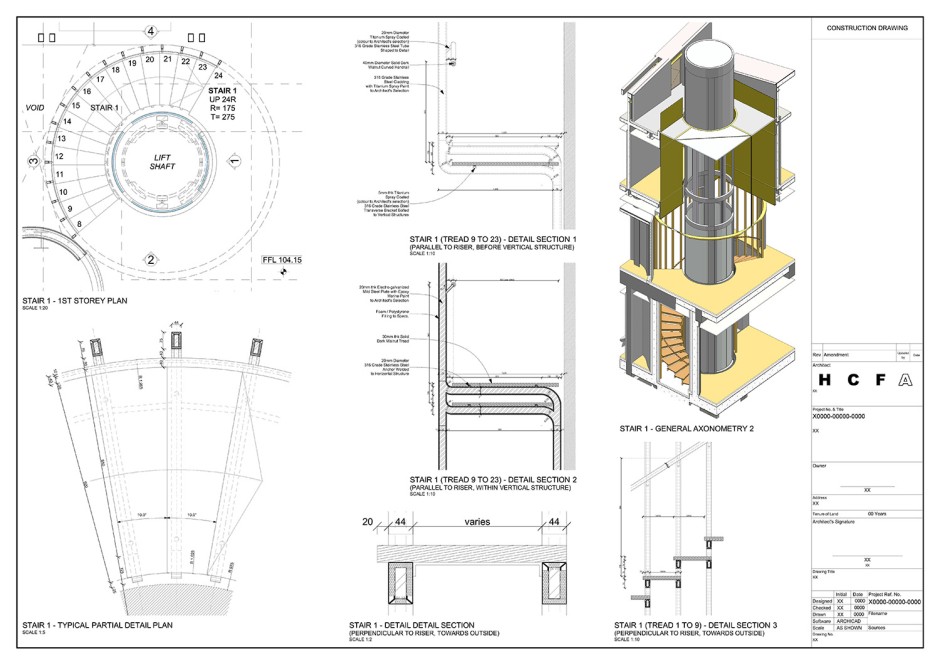
“住宅15″的設計是以幾何結構,以三座獨特的建築物圍繞住中庭。三座建築物反映了項目的三種特性。它很好地表現了家庭生活的格局,將中間空位留給如螺旋樓梯、中庭和電梯等需要”活動”空間的設置。
樓層規劃比較傳統,一樓屬於公共區域,地下室和二樓則較多私人空間。

試點項目
有幾個因素影響了HCF決定選擇”住宅15″為試點項目,將BIM完全融入到其設計流程:
- 項目的規模讓其能夠使用BIM去注意項目的每個細節。
- 項目的預期時間表讓其能夠去探索、審查、調整並可更正BIM設計過程。
- 項目的設計開發讓BIM模型變得更加豐富,隨着項目的不斷發展而添加了更多的細節、數據和信息。
- 負責項目的設計師團隊勇於接受挑戰去探索、研究和作出最佳實踐方案,同時又能夠跟上項目的時間進度和要求。
二維/三維設計流程與BIM設計流程的比較
HCF認為傳統的二維/三維設計流程有一系列的節點,它們各具獨立空間和時間,彼此之間很少聯繫,甚至沒有聯繫。這些節點包括結構方案的設計輸入、M&E系統(監測和評估系統)以及室內設計。整個過程會產生大量文檔,但缺乏整合和管控。
另一方面,BIM設計過程可讓每個節點在空間和時間上相互連接,並共享信息。這創造了一個智能的集成信息系統,並可從中提取智能數據。


有了BIM,任何錯誤都是嚴重錯誤。所以我們的設計師需要有細緻的工作流程和與BIM兼容的思維方式。這就是我們需確保設計師有適當培訓和指導的原因,以讓他們能達致最佳實踐。
Eric Barthole,BIM實施經理
與BIM兼容的思維方式
BIM的功能在於其集成信息和創建智能內容的能力。但是,如果用戶添加了錯誤信息,所有的節點將會立即受到影響,因為其強大的連接和自動化數據交換。
HCF堅信,只有一種方法可以避免該等情況發生,就是要確保添加到BIM模型的數據質量和精準度。換句話說,用戶必須是主節點,所以從主節點添加到BIM模型是唯一準確的信息。因此需要與BIM兼容的思維方式,其準確性、注重細節和真正關注要比倉促、粗糙和莫不關心重要得多。



BIM的實施
這項目的工作流程周旋於決策、實施和審閱之間。
從構思到設計開發
首席建築師負責以手繪圖紙和圖表的方式開展設計概念。
然後,項目建築師使用BIM將設計意圖轉化為立體研究模型。該模型是用來提取如面積、體積、太陽光源等額外信息。
首席建築師之後用獲取的信息來調整方案,並逐步細化內容,增加房間的劃分、開口、垂直轉接等。所產生的改變隨即被納入BIM模型,以獲取和審閱其影響。BIM平台為分包商和承包商提供便利,讓他們準確地共享有關空間的需求。
從設計開發到設計細節
項目建築師逐步增加BIM模型的信息量,同時保持高度的靈活性,以便更新持續的設計變更和調整。
BIM建模的核心原則
HCF充分利用BIM模型,盡量提取其數據並作模型演示。這是經過仔細創建、組織和優先排序的圖層、圖層組合、筆組、模型視圖選項和覆蓋來實現的。
“住宅15″BIM模型的另一個關鍵是”以現實建築所建造的模型”。該模型就是以虛擬方式準確地表達了現場建築將會建成的模樣。它還有助在早期階段發現可能出現的問題和衝突,以便在未影響施工的情況下把問題解決。

A.使用未定義的墻壁和厚板去創造空間
B.添加結構、開口、天花板。已定義的牆壁和厚板材料
C.添加M&E元素、飾面、接口和早期設計意圖



BIM模型的多功能性使提取信息變得輕而易舉。只需單次點擊就可以獲取視覺圖 © HCF and Associates, 提供:Archicad和CineRender
項目可交付成果
“住宅15″BIM模型已用於製作項目的所有交付成果和文檔,以迎合項目各階段和各方的需求。
客戶:項目各階段的房屋初步立體圖、概念圖、平面圖、立面圖、剖面圖,以及房屋外部和內部的渲染圖和BIMx展示
有關當局:所有提交的圖紙和補充說明圖和小冊子
承包商:招標圖、施工圖、詳圖、時間表和圖表
供應商:示意圖和圖表、圖紙、說明性小冊子


Teamwork 和 OPEN BIM
HCF認為數據協作是技術進步的關鍵,它將徹底改變建築業的設計流程。因此,能夠把握機會向所有項目利益相關者推行並讓他們參與這次協作至關重要。
在早期的創新階段,因為各方對BIM知識和使用程度不同,BIM協作將受到影響。雖然它已成為大多數建築公司的標準流程,但顧問和承包商,特別是小型公司仍然很少使用。
HCF鼓勵各方去作轉變,並向他們推廣BIM。HCF自2016年5月起,將BIM融入到其設計流程,並敦促項目合作公司使用OPEN BIM。
能夠和合作公司廣泛地交換檔案,無論在IFC還是CAD,都提高了設計流程的集成水平、準確性和效率。
就算是小項目也可使用BIM。事實上,小型項目是個好機會去探索BIM、Teamwork和OPEN BIM的各大功能。
Eric Barthole,BIM實施經理
下一步是什麼?
BIM,Teamwork 和 OPEN BIM提供了絕佳的機會,但在目前部分機會還沒有很好地去發揮。 BIM成為建築和設計行業的標準只是時間問題。不僅是建築公司,還有建造和工程公司以及當局也必須去接受BIM,以實現一致目標。
最重要的是不能將BIM設想為軟件,而是將其視為一個集成所有必要工具和協作界面的核心平台,在開發全面的虛擬項目時,無需理會其類別、規模和複雜性。
HCF對這種根本性的技術改革表示歡迎和支持,並積極與Graphisoft合作,進一步開發和增強其產品。
有關HCF and Associates
HCF位於新加坡,是一間由建築師、設計師和技術專家組成的建築咨询公司,提供有效率的專業服務。
概念和環境總體規劃
眾多大型項目都來自政府委託,因此負責單位在概念和環境總體規劃方面獲得了豐富的經驗。多用途的總體規劃項目涉及住宅、工業和機構使用,面積在10公頃以上,地形和地勢條件各不相同。
建築設計
負責單位積極去參與建築設計比賽並獲得成功,以及”親力親為”去全面實施工作,培養了高度的美學鑒別能力和高超的建築技能。被委託去精心製造優質的平房和精緻的零售室內設計,讓高度複雜的設計和材料試驗可平行發展。建築安裝工程是作為原生態建築理論來實現的。
遵守法規
負責單位有多年實踐和合規經驗。熟悉當地政府機構以及擁有處理複雜項目的豐富經驗,因此能夠深入瞭解當地建築和相關法例,並能夠成功地引導項目遵守法規。
項目實施的協調和管理
負責單位具備多年實踐經驗,能夠應付從室內設計項目到數百萬美元的大型設計和建造委託項目,並有能力組建高效、多領域的設計團隊。
有關Graphisoft
Graphisoft®於1984年引發了BIM革命,Archicad®是在業界推出的首款BIM軟件,專為建築師而設。Graphisoft繼續以創新的解決方案引領行業發展:BIMcloud®以突破性技術提供世上首個BIM實時協作環境; 而 BIMx®是世界領先的移動端應用程式,就算是非專業人士也可輕鬆使用BIM。Graphisoft 隸屬於Nemetschek集團。
