
Наталия Рыбасенко – автор проектов зданий Зарагижской, Верхнебалкарской и Усть-Джегутинской МГЭС.
С 2005 по 2010 год – архитектор в проектных организациях, работала над проектами жилых, общественных и производственных зданий, с 2010 года по настоящее время – главный специалист АО «Институт Гидропроект». Исполняла обязанности главного архитектора на следующих объектах: Загорская ГАЭС-2 на р. Кунье, Зарагижская МГЭС на р. Черек, комплексная реконструкция Волжской ГЭС на р. Волге, технологический корпус и здание КРУЭ 500 и 220 кВ Рогунской ГЭС, Верхнебалкарская МГЭС на р. Черек Балкарский, Усть-Джегутинская МГЭС.
В институте и его филиалах работают 788 человек, среди них – семь докторов наук, 46 кандидатов наук. У 27 специалистов есть государственные награды.
Отдел архитектуры и строительных конструкций института (ОАСК) занимается проектированием верхних строений зданий ГЭС. При этом верхнее строение ГЭС – это, по сути, промышленное здание, особенностью которого является то, что основанием (фундаментом) служит гидротехническая часть. Кроме того, в отделе проектируются служебные корпуса, вспомогательные сооружения, то есть практически все негидротехнические сооружения.
Особенности проектирования ГЭС
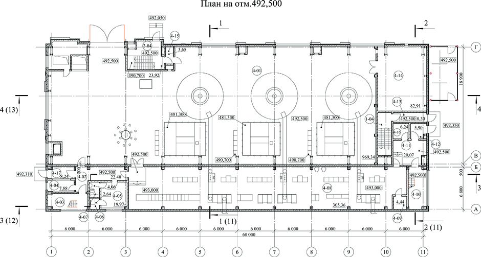
Здание ГЭС состоит из машинного зала и блока служебно-производственных помещений или служебно-производственного корпуса. Кроме того, здание ГЭС разделяется на подземную и наземную части (верхнее строение). В блоке служебно-производственных помещений располагаются технические, бытовые и административные помещения.
Подземную часть компонуют инженеры-гидротехники с привлечением архитектора. Верхнее строение проектируют архитекторы совместно с конструкторами. Все здание проектируется по техническим заданиям инженеров-технологов: гидромехаников, электриков, инженеров по крановому оборудованию и др.
Проектируя блок служебно-производственных помещений, архитектор решает несколько сложных задач, а именно:
- как увязать технические помещения между собой в соответствии с требованиями инженеров;
- как разместить среди технических административные и бытовые помещения, не нарушив нормы и правила;
- как вписать все эти помещения в заданный гидротехническими требованиями периметр (основанием для блока служебно-производственных помещений служит гидротехнический бетон).
На этапе компоновки здания рассматривается несколько вариантов расположения помещений.

Выбор в пользу Archicad

Архитекторы института работают в Archicad с 2011 года. Знакомство с программой сотрудники отдела, ранее не использовавшие это ПО, начали с эксперимента: попробовали разработать в программе рабочую и проектную документацию для Загорской ГАЭС-2. Результат показал, что применение Archicad значительно ускоряет подготовку документации. Трудность была только в конвертации чертежей из Archicad в формат DWG, но постепенно специалисты решили эту проблему с помощью гибкой настройки транслятора DWG.
На сегодняшний день для нас очевидны преимущества работы в Archicad. Как уже было сказано, мы рассматриваем много вариантов компоновки помещений, прежде чем сделать выбор. Программа позволяет оперативно создавать модель здания, одновременно разрабатывать планировочные и фасадные решения, а также быстро вносить в проект корректировки.
Архитектурные чертежи для рабочей документации включают различные планы этажа: кладочный план, планы отверстий, полов, потолка, конструкций усиления клади и др. Используя карту видов Archicad, архитектор создает все планы из одной модели, а не чертит их отдельно. И снова мы получаем сокращение времени на работу и внесение изменений в рабочую документацию.
Взаимодействие рабочих групп
Конструкторы института работают в AutoCAD. Расчеты строительных конструкций малых ГЭС инженеры выполняют в вычислительном комплексе SCAD. На основе этих расчетов они разрабатывают трехмерную модель несущих конструкций зданий, проводят прочностной анализ методом конечных элементов и устанавливают сечения всех несущих конструкций зданий.
Взаимодействие архитекторов и инженеров при проектировании зданий ГЭС строится следующим образом. Архитекторы получают от инженеров смежных отделов технологические схемы и на их основе разрабатывают планировочные решения здания. Исходя из требуемой компоновки здания проектируются строительные конструкции. Архитектурно-строительный отдел выдает технологическим отделам в качестве технического задания чертежи строительных конструкций, которые они дальше используют как подоснову для размещения инженерных систем.

Для передачи планов в смежные отделы архитекторы сохраняют в Archicad два варианта чертежей в формате DWG: первый – чертежи со штампами, полностью оформленные в книге макетов, которые в AutoCAD открываются в листах с чертежами в виде блоков; второй – чертежи, сохраненные из видового экрана, открывающиеся в AutoCAD в пространстве модели. В первом варианте чертежи разбиты и, по мнению большинства инженеров, непригодны для работы. Тем не менее некоторым специалистам они подходят, так как полностью оформлены. Во втором варианте чертежи сохраняют свои свойства, с ними проще работать, и поэтому большинство смежников используют именно их в качестве подосновы.
Малые ГЭС: Зарагижская, Верхнебалкарская и Усть-Джегутинская
На сегодняшний день одно из ведущих направлений для АО «Институт Гидропроект» – проектирование малых гидроэлектростанций (МГЭС).
Архитекторы зданий МГЭС в своих решениях учитывают следующие важные обстоятельства:
- технические, административные и бытовые помещения компонуются на небольшом участке застройки;
- планировочное решение отвечает технологическим требованиям, действующим нормам и правилам, в том числе по пожарной безопасности;
- используются конструкции и материалы, которые, среди прочего, позволяют возвести здание в сжатые сроки и с минимальными затратами.
Изначально предполагалось строительство здания из металлокаркаса с использованием навесных сборных железобетонных панелей, которые облицовываются плиткой и утепляются по системе навесного вентилируемого фасада (подобным образом было построено аналогичное здание МГЭС Кашхатау, введенное в эксплуатацию в 2010 году).
По желанию заказчика железобетонные панели заменили на сэндвич-панели, что упростило внешний вид здания. Из-за сжатых сроков строительства и ограниченного финансирования часть решений строители не смогли воплотить в жизнь. Изменения в проект вносились по ходу строительства, и это, безусловно, отразилось на архитектурном облике здания.

Объект: Зарагижская малая гидроэлектростанция на р. Черек
Период работы: 2013-2015 годы
Статус: проект реализован
Использованное программное обеспечение:
Archicad, AutoCAD, SCAD
ГИП: М.Ф. Уханов
Заместитель ГИПа: О.Л. Неговский
ГАП (автор проекта): Н.Е. Рыбасенко
Архитекторы:
П.С. Лобачев, И.Н. Смирнова, Д.М. Засядко




Сейчас мы работаем над архитектурными решениями двух малых гидроэлектростанций – Верхнебалкарской МГЭС (Кабардино-Балкарская Республика) и Усть-Джегутинской МГЭС (Карачаево-Черкесская Республика). Оба проекта разрабатываем в Archicad.

Объект: Верхнебалкарская МГЭС на р. Черек Балкарский (Кабардино-Балкарская Республика)
Период работы: настоящее время
Статус: в процессе разработки
Используемое программное обеспечение:
Archicad, AutoCAD, SCAD
ГИП: М.Ф. Уханов
Заместитель ГИПа: А.С. ТерликовА.С.
ГАП (автор проекта): Н.Е. Рыбасенко
Архитекторы:
В.В. Башкатов, П.С. Лобачев, А.С. Усольцев, Е.С. Азарова

Объект: Усть-Джегутинская МГЭС (Карачаево-Черкесская Республика)
Период работы: настоящее время
Статус: в процессе разработки
Используемое программное обеспечение:
Archicad, AutoCAD, SCAD
ГИП: Д.В. Баранов
ГАП (автор проекта): Н.Е. Рыбасенко
Архитекторы:
В.В. Башкатов, П.С. Лобачев, А.С. Усольцев, Е.С. Азарова
Мы учли опыт проектирования и реализации Зарагижской МГЭС и в текущих проектах предусматриваем экономичные и простые решения. Изначально экономично спроектированное здание в конечном результате смотрится гармоничнее, чем здание, более сложный проект которого был упрощен в ходе строительства.
О GRAPHISOFT
Компания GRAPHISOFT® в 1984 году совершила BIM революцию, разработав Arcjicad® — первое в индустрии САПР BIM-решение для архитекторов. GRAPHISOFT продолжает лидировать на рынке архитектурного программного обеспечения, создавая такие инновационные продукты, как BIMcloud™ — первое в мире решение, направленное на организацию совместного BIM-проектирования в режиме реального времени, EcoDesigner™ — первое в мире полностью интегрированное приложение, предназначенное для энергетического моделирования и оценки энергоэффективности зданий, и BIMx® — лидирующее мобильное приложение для демонстрации и презентации BIM-моделей. С 2007 года компания GRAPHISOFT входит в состав концерна Nemetschek Group.
