Design concept
The Villa Patio project is located in a residential area of Bandung, Java, Indonesia. The building lot is 300 square meters (3,229 square feet) and is located next to similar size lots facing a residential street.
The actual site is not of great value based on the external views; the potential lies within the building’s courtyard, which encloses the outside and filters the light to the inside, giving life to the foliage with a temporal use of the surroundings, opening a green frame that will evolve into a patio house.
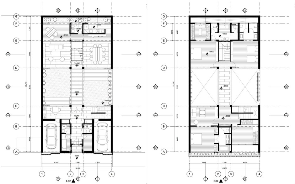
Based on the ‘patio’ or ‘courtyard’ idea, the living areas open to an inner green courtyard that provides light and privacy. The entire layout of the house is arranged around this private garden. The common areas and services are located on the ground floor, while the private rooms are on the first floor.
“By sharing a small-scale project, we wanted to give a practical example of how to implement BIM from the very beginning of a project. Many architects still don’t see the benefits of using BIM in the early concept design phase. For us, and for our clients, the workflow and the results have been a complete success.”
Eugenio Fontán Yanes, Design Director & Partner, enzyme apd



The project was designed with consideration to the technical requirements and construction methods of Indonesia. Most small buildings use brick and concrete with render finishes in some cases. The use of wood and bamboo is very common as well, and comes down to a matter of personal preference when combining these materials. In the case of the Villa Patio, the client was very clear in establishing the use of mainly concrete, brick and render as the main materials for the house. A ‘simple clean space’ and ‘versatile family house’ were some of the criteria expressed by the client from the very beginning of the concept design phase.
Archicad’s
Teamwork focus yields results
The entire team consisted of three architects, all with extensive experience in developing projects in BIM. The BIM model and all documentation produced was developed in Archicad working in the same file using Teamwork.
The Senior Architect was in charge of developing the design concept from the beginning, developing the BIM model with the rest of the team and producing the brochure with all deliverables to the client. The Senior Architect’s commitment to the project was three weeks’ full time.
The BIM Manager Architect was involved in the concept design during the development of the model and responsible for producing the documentation. The BIM Manager’s level of involvement was part time the first week and full time the second and third weeks.
The BIM Modeler Architect was involved in the concept design, creating the BIM model and producing the documentation. The BIM Modeler’s level of involvement was part time the first week and full time the second and third weeks.

Project deliverables
The project brochure includes all the documentation necessary for the concept design phase:
- Introduction: Explanation of the concept design.
- Inspiration: References, benchmarking, ideas.
- Design options: Variables and iterations of the concept design.
- Design drawings: Floorplan, sections and elevations to a 1:100 scale. All extracted from the BIM model.
- Diagrams: Axonometric views for explanation of the project, floorplan diagrams of functions and areas.
- CGI: Rendering of the interior and exterior spaces.
All documentation was provided in a PDF document of the brochure and a real structure folder of the separate documents, images and drawings. A BIM model file was not required by the client but was submitted along with the above-mentioned documentation.


Archicad workflow
helps keep the focus on design
The entire concept design was developed in three weeks. The project was developed in BIM using Archicad from the beginning. All graphical documentation provided was developed inside Archicad 19. Adobe Photoshop was used for editing the computer generated images and InDesign was used for the development of the project brochure.
Week One

- Elaboration of ideas and iterations for the concept design development. The Senior Architect is in charge of the design. The team (two Architects) were involved in the design process developing options and sketching designs.
- Preparation of the template and the BIM file for production of documentation. The BIM manager was in charge of this task while joining partially in the design process.
Week Two

Developing the BIM model of the chosen design in Teamwork.
The client’s feedback was used during this period to make changes to the design. The entire team was involved during this process. The BIM manager prepared the documentation, managed graphic standards and libraries. The Senior Architect and BIM modeler developed the project using Teamwork.

Week Three
- Production of documentation and deliverables.The BIM model was readied for exporting graphic documentation and 2D drawings. Minor changes were applied to the design and all documentation provided was updated accordingly. The BIM Manager’s task was to export all documentation for postproduction in the case of the CGI and diagrams, and for the brochure. The BIM Modeler Architect was in charge of post-production of CGI and Diagrams for inclusion in the brochure and for separate delivery.
- Completion of brochure and submissionAll documentation was input into the brochure by the Senior Architect who prepared and designed the brochure format and presentation. The BIM file was updated and prepared for submission. The .PLN file with separate Libraries folder and .PLA was prepared for the client.
“In our practice, the implementation of BIM from the beginning of a project is nothing but an advantage when consulting with clients and all other stakeholders involved. All the work at the office and all the coordination with external parties can only benefit from a smart process like BIM.”
Eugenio Fontán Yanes, Design Director & Partner, enzyme apd

About the APD
(Architectural Design Process)
According to Eugenio Fontán Yanes, there is still a debate among architects about the efficiency of BIM vs. the 2D/3D process in the early concept design phase. “In our practice, the implementation of BIM from the beginning of a project is nothing but an advantage when consulting with clients and all other stakeholders involved. All the work at the office and all the coordination with external parties can only benefit from a smart process like BIM.”
A very simple template prepared for “Concept Design” is something that allows the firm to start a project in BIM without losing time at the beginning, and allows designers to see the results of the evolution of the project in a very early stage, both in 2D and in 3D.
“A process where all 2D documentation is exported directly from the model in a ‘smart’ way speeds up the entire process and provides a level of accuracy that minimizes errors. This can only be achieved with a true BIM model built from the beginning,” said Eugenio Fontán Yanes.
Enzyme’s architects have all experienced the disadvantages of a 2D design process. “The amount of time wasted on coordination and manual tasks increases errors that accumulate throughout the process,” said Eugenio Fontán Yanes.
“In our practice, the implementation of BIM from the beginning of a project is nothing but an advantage when consulting with clients and all other stakeholders involved. All the work at the office and all the coordination with external parties can only benefit from a smart process like BIM.”
“By using a design process that involves BIM, we achieve the best results with a better use of time and resources.”
Eugenio Fontán Yanes, Design Director & Partner, enzyme apd

About Enzyme
Enzyme was founded in Hong Kong with the idea of offering complete and thoughtful design, from architectural and interior concept design to project management and site coordination. The firm has offices and partners in Dubai, Bali, Madrid and New York.
About Graphisoft
Graphisoft® ignited the BIM revolution in 1984 with Archicad®, the industry first BIM software for architects. Graphisoft continues to lead the industry with innovative solutions such as its revolutionary BIMcloud®, the world’s first real-time BIM collaboration environment; and BIMx®, the world’s leading mobile app for lightweight access to BIM for non-professionals. Graphisoft is part of the Nemetschek Group.